
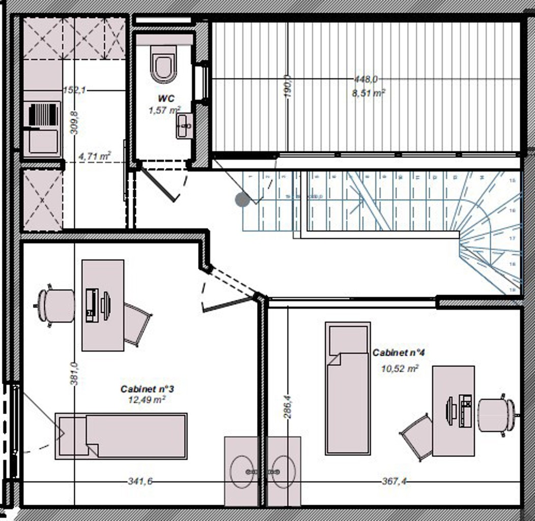
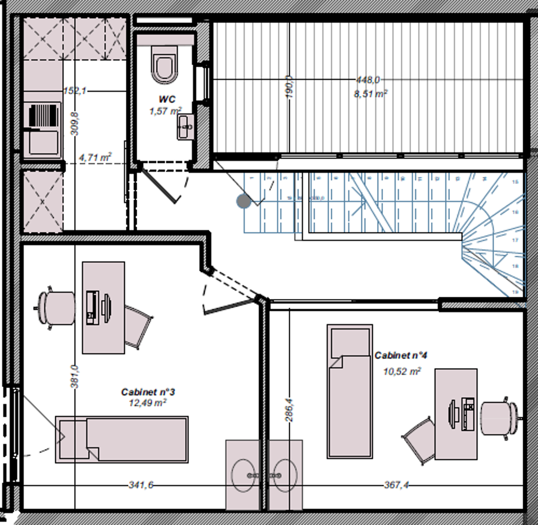
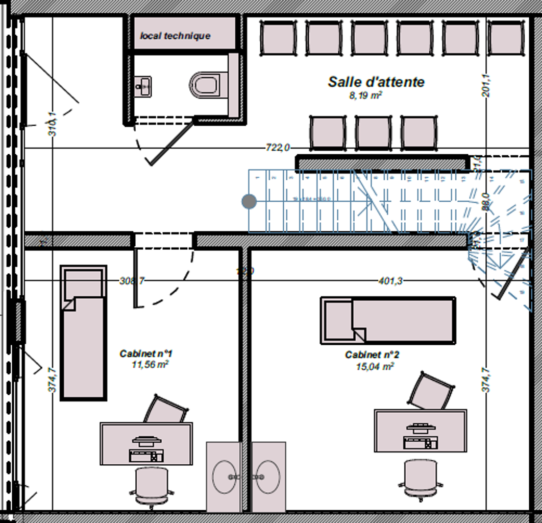
Ce bâtiment neuf est situé dans une rue avec un parking aisé et gratuit à quelques centaines de mètres du Parc de La Woluwe. Les bureaux sont situés en arrière de parcelle et sont affectés actuellement en tant qu'"équipement d'intérêt collectif", plus précisément comme cabinet médical. La commune de Woluwe Saint Pierre peut autoriser dans cette zone, sous réserve de permis, le changement d'affectation en "bureau" ou en "activité productive" (artisanat, services...). Le bâtiment à rue est composé de 4 appartements neufs (non inclus dans ce prix), une entrée cochère mène au bâtiment arrière. Construction neuve : Finitions de standing, moderne et entièrement fini. On trouve 123m² bruts qui se composent en 4 cabinets médicaux (ou bureaux) privatifs de 11,6m² - 15m² - 12,5m² - 10,5m². Il est possible modifier la division de ces 4 espaces si besoin. Egalement une salle d’attente, un espace cuisine, une terrasse de 8,5 m², deux WC, une VMC Double Flux avec échangeur de chaleur. Installation de chauffage, électricité et eau indépendants.
Référence | 6233546 |
---|---|
Catégorie | Bureaux |
Meublé | Non |
Garage | Non |
Parking | Non |
Surface habitable | 123 m² |
Disponibilité | à l'acte |
Année de construction | 2024 |
---|---|
Parking intérieur | Non |
Parking extérieur | Non |
Nombre d'étages | 2 |
---|
Cuisine | Oui |
---|---|
Chauffage (ind/coll) (type (ind/coll)) | individuel |
Nbre de toilette(s) (nombre) | 2 |
Ascenseur | Non |
Double vitrage | Oui |
Chauffage (type) | gaz |
Profession libérale poss. | Oui |
---|
Bureau | Oui |
---|
Sous régime TVA | Oui |
---|
Châssis (type) | aluminium |
---|
Attestation du sol | Oui |
---|---|
Certificat d'électricité (oui/non) | oui, conforme |